×

ANNUNCI IMMOBILIARI -> IN VENDITA

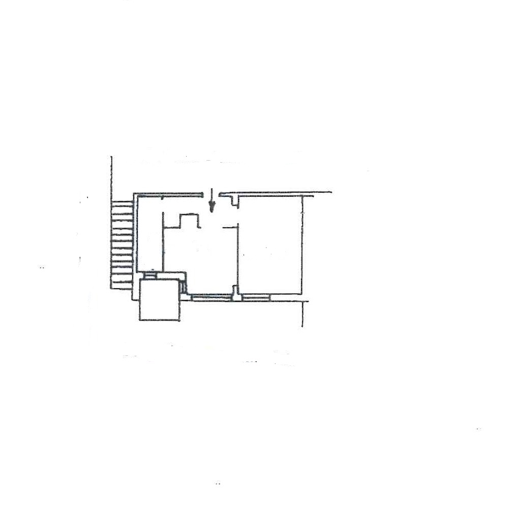
CODICE INSERZIONE: APPARTAMENTO IN ZONA GOLF CON GRADEVOLE VISTA

IN VENDITA

MQ: 45
STATO: Da ristrutturare
RISCALDAMENTO: Autonomo
CAMERE: 1
BAGNI: 1
CUCINA: Angolo Cottura
BALCONI: 1
TERRAZZI: 0
BOX: Assente
GIARDINO: No
CANTINA: 0
PIANO: 2
ACCESSORI: Ascensore, PortaBlindata, Esposizione Interna, Esposizione Esterna

 

€ 74.000,00

APPARTAMENTO POSTO AL SECONDO PIANO CON GRADEVOLE VISTA APERTA. Vendiamo appartamento cosi` composto: ingresso, soggiorno con angolo cottura, camera matrimoniale, servizio con finestra, balcone, il palazzo presenta alcuni posti auto condominiali. Ottima opportunità di investimento, in posizione comoda e pianeggiante con tutti i negozi e i servizi sotto casa. Per maggiori informazioni potete contattarci al: 0185.50810 (Tel.) oppure consultare il nostro sito internet: gruppolazzerini.com